Rabbit House
基本信息
原文名称
ラビットハウス /Rabbit House
常驻员工
智乃 (店主之女、店员)
心爱 (打工店员、寄宿)
理世 (打工店员)
提比 (名义吉祥物)
Rabbit House (日语:ラビットハウス Rabitto Hausu ,又译作兔之屋 )是Koi 创作的漫画《请问您今天要来点兔子吗? 》及其衍生作品中登场的一间咖啡厅 兼酒吧 ,也是故事最主要的舞台之一。
简介
Rabbit House是智乃 一家在小镇经营的餐饮店,也是本作主角之一心爱 打工并寄宿的店铺。另一位主要角色理世 也在这里兼职打工。
原店主是智乃的爷爷,店中饲养了一只叫提比 的安哥拉兔。在本篇故事开始一年前,不知因何原因爷爷的灵魂进入了那只安哥拉兔。之后店面也交给了智乃的父亲香风隆宏 ,变成兔子的爷爷则作为Rabbit House的吉祥物,继续陪伴智乃父女的生活。
白天的Rabbit House是传统的咖啡厅 ,向客人供应高品质的各式咖啡饮品以及甜品、面包等轻食。而到了夜晚Rabbit House就会变成提供各式鸡尾酒的酒吧 。故事中的少女们主要负责咖啡厅形态的服务,酒吧业态则主要由隆宏先生负责经营。
相关角色
常驻员工
第三季动画宣传绘:身着Rabbit House制服的主要角色们。 前排:智乃 (钴蓝)、心爱 (粉); 餐桌:千夜 (绿)、理世 (紫)、纱路 (黄); 吧台前:麻耶 (天蓝)、小惠 (三文鱼粉); 吧台后:青山小姐 (酒保)、真手凛 (酒保)。
心爱
从外地来到Rabbit House所在的镇上读高中,在智乃家寄宿,并按照寄宿的方针在Rabbit House打工。
性格开朗活泼,在招待方面从不会怯场,但是工作时有些冒失。另外,几乎没有分辨不同种类咖啡的能力。
老家是开面包店 的,所以有时会帮Rabbit House推出面包产品。
智乃
Rabbit House原店主的孙女,虽然只是初中生,但是已经开始脱离父亲的帮助独立负责白天的店内事务。
性格非常内向,但能力很强,可以一人完成所有工作。
工作时头上常常顶着吉祥物提比,是智乃最为人熟知的形象之一。
虽然名义上是Rabbit House的看板娘,但会趁理世不在时和心爱一起晒太阳摸鱼[ 1]
理世
富贵人家的大小姐,父亲是退役军人,在父亲的介绍下来到Rabbit House打工。
做事认真靠谱,雷厉风行。在制作意大利面、咖啡拉花方面都很擅长。
军迷,喜欢使用部队的热血术语,在更衣间内藏有玩具手枪和军刀,制作拉花咖啡时有时会画出坦克、枪械等各种作战武器。
香风隆宏
Rabbit House现任店主,也是智乃的父亲。性格沉稳的料理达人 。
主要负责Rabbit House晚间(酒吧形态)的事务。主角一行休假时也兼顾咖啡店的经营。
曾在Rabbit House酒吧表演爵士乐时参与萨克斯 演奏。
提比
提比作为看板兔 ,白天多以顶在智乃头上的形式陪同智乃工作,晚上则陪同隆宏一起在吧台斗嘴 看店。
作为吉祥物有着调皮的一面。虽然变成了兔子,但仍坚称自己才是店主。
可以提供咖啡占卜的服务,准确率极高。
唯一白天和晚上都在看店的角色。也是唯一工作时不穿制服的角色。
拥有专属制服的角色
千夜 、 纱路
心爱的同龄好友,分别在甘兔庵 、Fleur du Lapin 担任看板娘的角色,具有出色的服务水平和经验。Rabbit House缺人手时应声前来帮忙。
其中纱路有醉咖啡 的体质,甚至在店里待久了闻着咖啡的气味也会醉。
在故事的第二年分别获得个人专属的绿色和黄色制服(由智乃的母亲 制作到一半,再由心爱、理世制作完成)。
麻耶 、 小惠
智乃的同龄好友,经常来店里找她玩,或者在心爱不在时来帮忙。
在故事的第二年分别获得心爱、理世全新制作的天蓝色和三文鱼粉色的个人专属制服。
两人升入高中后开始出现更有计划性的排班。
其他常客
青山Blue Mountain (青山小姐)
Rabbit House所在镇子的小说家,经常光顾Rabbit House来寻找写作灵感,其作品《变成兔子的咖啡师》就是以Rabbit House为原型创作的。
学生时期受过原店主的帮助和鼓励,非常希望能向原店主报恩。
偶尔也会客串店员(身着酒保制服)。
真手凛 (凛小姐)
青山Blue Mountain的责任编辑,经常因为催稿追到Rabbit House寻找青山小姐。
不习惯咖啡的酸苦味,但是对智乃改良的奶油泡沫咖啡情有独钟。
理世的父亲
隆宏的好友。有时会在晚间来酒吧与隆宏闲谈。在主角一行缺席时也会来客串店员。
前工作人员
智乃的爷爷
前任店主。水平很高的咖啡师,对咖啡的品质有很强的执着。另外也有藏酒的爱好。
因未知原因变成兔子后则是以提比的身份继续陪伴智乃父女。
曾经对常来店里的青山小姐提供过很多帮助和建议。
香风咲
智乃的母亲、隆宏的妻子。曾与隆宏、理世的父亲合作在Rabbit House酒吧表演爵士乐,并担任主唱。
为了让智乃交到更多的朋友而制作了初始的三套咖啡店员制服(粉色、钴蓝色、紫色),绿色和黄色制服则在过世前制作到一半。
理世的父亲
曾在Rabbit House酒吧表演爵士乐时参与乐器演奏。漫画设定中与隆宏一同演奏萨克斯,在动画中改演奏低音提琴 。
建筑设计
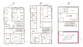
第一季动画设定中的Rabbit House建筑平面图。房间和物体的尺寸在实际作画中存在改动。
Rabbit House的建筑是一个有着木制骨架的[ 2] 、凹曲线屋顶的三层小楼,同时承担店铺营业和香风家日常起居的功能。店面的风格及装潢传统而朴素,从侧面反映出香风一家“Simple is the best”、“专注于咖啡本身”等信条和理念。
原作漫画仅明确了Rabbit House的建筑外景和内部营业区域等部分房间的设计。另外,漫画中出现了关于智乃与心爱在智乃的房间打闹时,在吧台的隆宏和提比可以感觉到天花板震动的描写,从中可判断原作中智乃的房间设置在2楼。
店内设有暖气,在冬天即使穿着夏季制服工作也丝毫没有关系。
在第一季TV动画中,Rabbit House建筑整体的内部布局设计有了进一步的补充:
1层:店铺营业区,营业用厨房,杂物间,员工更衣室。
2层:智乃、隆宏的卧室,家用厨房和餐厅,洗浴间,空置的卧室(可能被用来招待摩卡 等客人)。
3层:心爱的卧室,阳台。
除前门外,还有一扇后门和一个空置的后院。
提比似乎没有自己的卧室,动画中出现了提比睡在走廊中的镜头。
制服
咖啡店
咖啡店店员的制服为白色正装衬衫、背心和黑色及膝长裙,衬衫领口系有蝴蝶结,蝴蝶结与背心的配色根据角色印象色的不同而有所区分,下身穿黑色连裤袜 与黑色短靴 ,年纪较小的店员则穿着白色及膝袜 与玛丽珍鞋 (此外早期少部分插画中心爱所穿的是长靴,之后统一为短靴)。
夏季制服则是采用了短袖衬衫和薄裙子,搭配白色连裤袜和玛丽珍鞋,发型可根据店员喜好做出改变(如心爱改成侧马尾 ,智乃改成单马尾 )。
酒吧
酒吧制服为正装衬衫、黑色马甲与领结,男性店员穿黑色西装长裤,女性店员搭配黑色短裙与高跟鞋 。
菜单
咖啡店
咖啡店形态的Rabbit House以售卖各式各样的咖啡为主。值得一提的是,每位店员制作的拿铁咖啡拉花都各具风格。
咖啡店也出售理世拿手的意大利面,以及心爱开发的各式面包。此外,心爱也会在Rabbit House开办提供更多面包花样的面包节。
店中的绝大部分菜品都获得了剧中人物和顾客的正面评价。值得一提的是,故事本篇第一年圣诞节期间推出的限定特制烤薄饼一度引起轰动,而智乃在第二年开发的奶油拿铁咖啡拉花因为有柔和的口感而获得职业编辑凛小姐 的青睐。唯有心爱监修的厚吐司收到了身为面包达人的姐姐摩卡 的差评。
拿铁咖啡拉花(智乃制作) 拿铁咖啡拉花(智乃制作)
拿铁咖啡拉花(理世制作) 拿铁咖啡拉花(理世制作)
拿铁咖啡拉花(心爱制作) 拿铁咖啡拉花(心爱制作)
拿铁咖啡拉花(摩卡 制作,隆宏店长指导 )
奶油拿铁咖啡拉花(智乃制作) 奶油拿铁咖啡拉花(智乃制作)
圣诞限定特制烤薄饼 圣诞限定特制烤薄饼
日式那不勒斯风味意大利面(理世监修) 日式那不勒斯风味意大利面(理世监修)
英语不及格的 面包节特制面包(心爱制作)英语不及格的 面包节特制面包(心爱制作)
厚吐司配黄油(心爱监修) 厚吐司配黄油(心爱监修)
动画第一季中,心爱报到的第一天时阅读的菜单 (下方灰色外文仅作片假名直译 参考,在原作中并不存在)
Coffee (咖啡)
オリジナルブレンド (Original Blend)
原创综合咖啡
¥400
アメリカンブレンド (American Blend)
美式综合咖啡
¥400
アイスコーヒー (Ice Coffee)
冰咖啡
¥400
ヒルスコーヒー (Hills Coffee)
Hills咖啡
¥450
ダッチコーヒー (Dutch Coffee)
荷兰咖啡
¥450
Straight Coffee (纯粹咖啡)
ブルーマウンテン (Blue Mountain)
蓝山咖啡(青山Blue Mountain )
¥500
グアテマラ・アンティグア (Guatemala Antigua)
危地马拉安提瓜咖啡
¥450
キリマンジャロ (Kilimanjaro)
乞力马扎罗咖啡(桐间纱路 )
¥500
ブラジル・サンスト [ 3]
巴西山度士咖啡
¥450
モカ・マタリ (Mocha Matari)
也门马大利摩卡
¥500
コロンビア・スプレモ (Colombia Supreme)
哥伦比亚顶级咖啡
¥450
マンデリン・カロシ (Mandheling Carlosi)
曼特宁卡洛西咖啡(真手凛 )
¥500
Arranged Coffee (调制咖啡)
カフェ・オ・レ (Café au Lait[ 4] )
昂列咖啡
¥400
カフェ・ラテ (Café Latte[ 5] )
拿铁咖啡
¥420
ウインナーコーヒー (Vienna Coffee[ 6] )
维也纳咖啡
¥450
カフェ・カプチーノ (Café Cappuccino)
卡布奇诺(香风智乃 )
¥500
モカチーノ (Mocaccino[ 7] )
摩卡咖啡(保登摩卡 )
¥500
Other Drinks (其它饮品)
紅茶(ストレート (Straight) 、レモン (Lemon) 、ミルク (Milk) )
红茶(直饮、柠檬茶、奶茶)
¥400
Food Menu(轻食)
サンドイッチ (Sandwich)
三明治
¥700
ナポリタン (Neapolitan)
那不勒斯风味意大利面
¥650
パンケーキ (Pancake)
薄饼
¥600
ケーキ (Cake)
蛋糕
¥500
酒吧
晚间的Rabbit House则提供由隆宏先生主持的酒吧服务,有售卖各式鸡尾酒。原作和动画中均未出现关于酒精类饮料的细节描写,不过动画版的店铺内则在吧台上方出现了酒类菜单的看板。
动画中吧台上方黑板中登出的酒类菜单
原名
参考译名
主要成分
Gin and Tonic
金汤力
琴酒、奎宁水、冰
Daiquiri
德贵丽
兰姆酒、柑橘汁、糖
Shandy Gaff
姜汁啤酒
啤酒、姜汁汽水(神沙映月 )
Kahlua and Milk
牛奶鸡尾酒
甘露咖啡利口酒、牛奶
Passoa Orange
西番莲橙子
西番莲利口酒、橙汁
Mamie Taylor
玛密泰勒
苏格兰威士忌、柠檬汁、姜味啤酒
China Blue
中国蓝
荔枝利口酒、葡萄柚汁
Fairy Land
仙境
哈密瓜酒、椰酒、黑珊布卡酒、蓝库拉索酒
Campari and Soda
金巴利苏打鸡尾酒
金巴利酒、苏打水
Gimlet
琴蕾
琴酒、柠檬汁
Screwdriver
螺丝刀
橙汁、伏特加
salty dog
咸狗
琴酒(或伏特加)、西柚汁、盐(撒在杯子边缘)
经营状况
虽然智乃的爷爷是非常厉害的咖啡师,但是爷爷在世时店铺也一度经营不善,彼时的爷爷曾因还债压力大而多次道出“还不如干脆变成一只无忧无虑的兔子”的戏言。
自故事本篇起经营状况似乎不好不坏。一方面,剧中人物并没有被生计或营业额所困扰,而且心爱举办的面包节、智乃开发的奶油泡拉花咖啡等新事物广受欢迎;另一方面也会时常上演店中无客人、当客人太多会感到吃惊、营业额还不如在旧货市场卖杂物多等桥段。在第二年的圣诞节之际,凛小姐编辑的Rabbit House宣传文在杂志上发表,一度令Rabbit House迅速走红,迎来空前的客流。
同城的甘兔庵 、Fleur du Lapin 虽然也属于有一定竞争关系的茶点餐饮店,但是分别贩卖日式传统茶点和草本茶,在商品内容上并无直接冲突的部分。第二季12话结尾众人聚会的露天咖啡馆,同样没有描写营业竞争的情节。智乃升入高中后,小镇中开设了大型连锁咖啡店Bright Bunny 的分店,出现更直接的竞争。
轶事
智乃的爷爷当家时,曾与同镇千夜的奶奶当家的甘兔庵 有过合作的历史,但是由于双方互相认为对方的红豆馅/咖啡抢了自己的风头,反而结下了一些“恩怨”。
智乃的母亲香风咲在世时,曾与隆宏、理世的父亲在店内合作表演爵士乐。后来千夜听闻后燃起了在甘兔庵表演卡拉OK 揽客的欲望。
当心爱不在身边时,智乃会在心不在焉的情况下制作出大量的可可饮品(日语音同“心爱”),被理世命名为“思心爱病”(ココアシック )。理世偶尔也会出现“思心爱病”,症状是制作大量吐司面包。
Rabbit House的报导首次在杂志《Walker》上登出时,隆宏负责的酒吧业态被放到了“帅气的酒保”特辑中,得到了比咖啡厅大得多的版面。
酒吧业态设置了吹箭游戏区,广受欢迎。隆宏和理世的父亲有时也会进行吹箭比赛。
心爱的姐姐 和母亲在想念心爱时会在自家的保登面包房 玩“装扮成Rabbit House”的游戏。两人各头顶一个提比的玩偶。姐姐摩卡甚至自制了一套与心爱高度相似[ 8] 的制服。
Rabbit House有若干与名称中的“兔子”有关联的事物:
吉祥物提比是一只兔子,店内也有很多兔子的装饰;
作品标题;
位于以拥有很多野兔子著称的小镇;
智乃的母亲、香风咲的爱称是“小兔子”;
一张由香风咲、香风隆宏以及理世的父亲合作演出的唱片中,署名的作者为“Saki Kafu and Two Rabbits”(香风咲及两只兔子),暗示了两位男士的绰号[ 9] 。
法国科尔马有一家建筑结构与Rabbit House非常相似的餐厅Restaurant Au Chasseur ,同样为三层楼的设计,且顶层的阁楼夹在高耸的人字形屋顶中间,或为Rabbit House设计的参考来源之一。
店内设计参考了东京都清濑市的一家名为「るぽ コーヒーハウス 」的咖啡店,而该店在运营长达36年后,将于2024年3月30日正式关店,或许暗示了Rabbit House的命运。
萌娘百科 的用户 可以在其用户页面 上悬挂{{用户_点兔 }}模板声明自己寄住在Rabbit House,以表示对作品的喜爱。
请问您今天要来点兔子吗?(ご注文はうさぎですか? ) 登场角色
登场设定 作品相关 愚人节 活动
《请问您今天要来点兔子吗?》收录歌曲 主题曲
第1期
第2期
第3期
OVA
Dear My Sister
Sing For You
角色歌
第1期(2014)
第2期(2015)
宝箱のジェットコースター ぴょん'sぷりんぷるん ハートぷるぷる事件です
cup of chino 第2期 角色歌系列 (挑战)
chimame march OVA
第2期 角色独唱系列 (爵士-派对)
第2期 生日歌系列 (生日-生月-季节)
02/14 理世 03/13 摩卡 04/10 心爱 07/15 纱路 08/08 麻耶 09/19 千夜 10/27 青山 11/02 小惠 12/04 智乃
第3期
10周年角色歌
原声带
歌集
CM限定
特典
BD特典
PSV特典 角色歌特典
AT-X加入者应募特典
ACG作品中所登场的各种建筑、设施、场所
商店/店面
住所
宗教设施
道场/道馆 舞台/剧院 事务所
注释
↑ 单行本第7卷第2话(连载第81话),TV动画第3期第9羽。
↑ 英文为Half-timbering ,指木制框架裸露在墙体外的设计。该风格也是作品所在小镇的主要特色及“木制街道”(木組みの街 )一词的名称来源。
↑ 此处动画有笔误,应为ブラジル·サントス (Brazil Santos)。
↑ 法文
↑ 法文
↑ 此处动画或有笔误,应作Viennese Coffee(Vienna一词本身具有形容词形式)
↑ 意大利文
↑ 摩卡的马甲上没有深色的装饰花纹。
↑ 动画OVA2《请问您今天要来点兔子吗??~Sing for You~》的设定。